Overview
2 Bedroom Mobile Home for sale in The Grange, Lutterworth
Key Features:
- Two double bedroom Park home
- Entrance hall with cloak cupboard
- Lounge diner
- Modern fitted kitchen with appliances
- En-suite & dressing room to bedroom one
- Family bathroom
- Garden with storage shed
- Parking for two vehicles
- Immaculately presented and must be viewed.
- No upward chain
Welcome to The Grange in Lutterworth! This charming Park home is nestled in a gated development, offering you a secure and peaceful retreat. As you step into the entrance hall, you are greeted by a beautifully designed bay fronted lounge diner, perfect for relaxing or entertaining guests. This property boasts two double bedrooms, including a master bedroom with a convenient dressing room and en-suite shower room. The second double bedroom comes with fitted wardrobes, providing ample storage space for your belongings. Additionally, there is a modern family bathroom for your convenience. The fitted kitchen with appliances is a chef's delight, allowing you to whip up delicious meals with ease. Outside, a garden awaits you, complete with a metal storage shed for your gardening tools or outdoor equipment. The drive offers parking space for two vehicles, ensuring your convenience. Whether you are looking for a peaceful retreat or a cosy home to entertain friends and family, this Park home at The Grange offers you the perfect blend of comfort and style. Don't miss out on the opportunity to make this charming property your own! Offered with no upward chin.
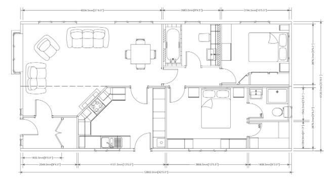
Entrance Hall - 1.91m x 1.50m (6'3" x 4'11") - Enter into this beautiful home via a composite front door where you will find a generous cloak cupboard and a radiator. A glazed door opens into the lounge and dining room .
Lounge Diner - 4.24m (max) x 6.45m (max) (13'11" (max) x 21'2" (m - This spacious bay- fronted lounge diner has a feature fireplace housing an electric pebble effect fire, dual aspect windows to the side and two radiators. Luxury vinyl flooring There is ample space for a full sized dining table which is the ideal space to entertain friends and family. A glazed door opens into the kitchen.
Dining Photo -
Kitchen - 2.84m x 3.51m (9'4" x 11'6") - Fitted with a wide range of modern cabinets with wood effect surfaces. Composite bowl and half sink unit with mixer taps. Eyelevel double oven. Induction hob with extractor. Integral fridge freezer, washing machine and dishwasher. Luxury vinyl flooring
Kitchen Photo Two -
Inner Hall - 2.69m x 0.91m (8'10" x 3' ) - The inner hall gives access to the bedrooms and bathroom.
Bedroom One - 2.84m x 3.78m (9'4" x 12'5") - A double bedroom with a window to the side aspect, fitted drawer units and a radiator.
Dressing Room - 1.27m x 1.88m (4'2" x 6'2") - Fitted with drawers and hanging space which is the perfect space to store all of your clothes.
En-Suite - 1.50m x 1.80m (4'11" x 5'11") - Fitted with a low level WC, wash hand basin set onto a vanity unit, corner shower cubicle, ceramic wall tiles and luxury vinyl flooring, radiator and an opaque window to the rear aspect.
Bedroom Two - 2.84m x 3.15m (9'4" x 10'4") - A double bedroom with fitted wardrobes, radiator and a window to the side aspect.
Bedroom Two Photo Two -
Bathroom - 1.93m x 2.54m (6'4" x 8'4") - Fitted with a back to wall WC, wash hand basin set onto a vanity unit, bath, ceramic wall tiles and luxury vinyl flooring, radiator and an opaque window to the side aspect.
Bathroom Photo Two -
Garden Photo -
Garden Photo Two -
Outside Frontage Photo -
Outside & Parking - The garden is laid to lawn with a sizeable metal storage shed. The block paved drive provides parking space for two vehicles.
Read more