Price £99,950
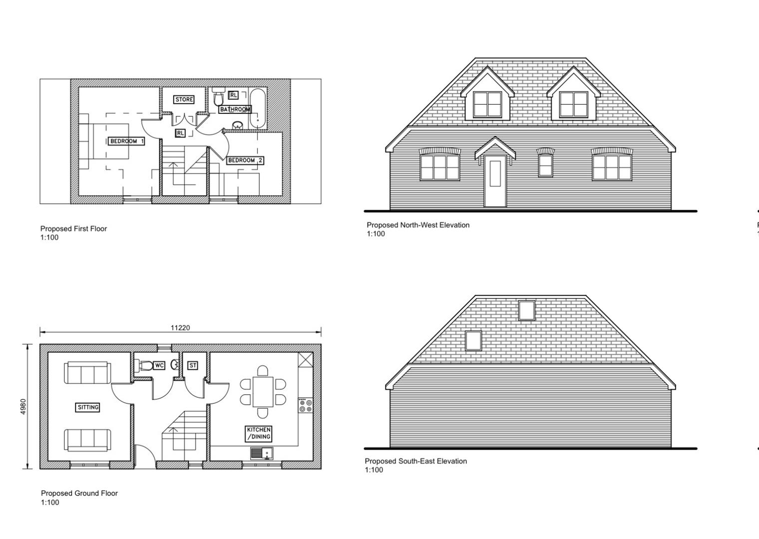
A rare and exciting opportunity to purchase a freehold building plot right near the heart of the ever popular village of Fleckney, with planning permission granted for a detached two bedroomed dormer style property (25/00680/FUL). The images within these property details have been extracted from the property planning portal where further information can be obtained by searching with the aforementioned planning reference. The plot measures approximately 15.5M to the double-gated Kilby Road boundary, 11.5M to the left, 13M to the rear and 16.3M to the right. These measurements have been provided by the Vendor on good faith and must be verified in person if you wish to purchase. Fleckney is a delightful village located between the town of Market Harborough and the city of Leicester with easy access to the M1 motorway network. Adams & jones are pleased to present the plot for sale with no connected chain and are happy to assist with any further enquiries.
Site Location -
Proposed Site Plan -
Proposed Front Aspect -
Proposed Elevations -
Northampton Road, Market Harborough
Northampton Road, Market Harborough